商品プラン
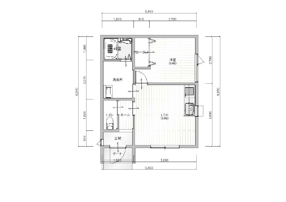
平屋11.2坪
平屋
1LDK
施工面積
11.2
坪
本体価格
862
万円
(税込949万円)
※別途付帯工事費あり
商品一覧に戻る
▼コンテンツ
トップページ
見るだけ見学会予約
イベント情報
モデルハウスオーナー募集
商品ラインナップ
充実の仕様
標準仕様
住宅ローン借入事例
安さのひみつ
よくある質問
施工事例
お客様の声
社長メッセージ&会社概要
ご来店予約
スタッフ紹介
スタッフブログ
しろくまハウス | <旭川市>ローコスト住宅専門・新築住宅・注文住宅